Informazioni di base
- Data aggiunta: Aggiunto 1 settimana fa
- Camere da letto: 3
- Bagni: 1
- Mezzi bagni: 1
- Locali: 5
- Piani: 2
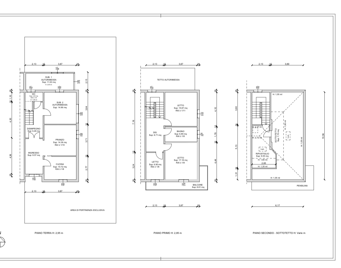
- Superficie: 135 m²
- Dimensione del lotto: 260 m²
- Anno di costruzione: 1980
Descrizione
-
Descrizione:
CARPI, CIBENO. Prestige Property propone in vendita in uno dei quartieri più richiesti questa bellissima Villa Bifamiliare con giardino su 3 lati e ingresso indipendente, già arredata e pronta ad accogliervi.. . Composizione: Al piano terra ci accoglie l'ampio ingresso, che ci conduce al soggiorno e alla cucina separata abitabile, al primo piano abbiamo 3 camere da letto di cui 2 matrimoniali e una singola, e il bagno. Al secondo piano c'è il sottotetto in parte sfruttabile come studio, palestra o zona hobby. Completano la proprietà 2 garage e area cortiliva di circa 165 mq pavimentata, disposta su 3 lati. L'immobile si vende completamente arredato come da foto con arredi nuovi compresi nel prezzo d'acquisto. Gli impianti sono a stati revisionati e certificati. Non perdete l'occasione di visitare questo immobile.. . per ulteriori informazioni chiamate al 3454149940 oppure scriveteci info@prestigeimmobiliarecarpi.it
Mostra tutta la descrizione
Dettagli dell'edificio
- Spazi per garage: 2
Energy diagnostics
-
Energy Efficiency Class: ABCDEFG
