Appartamento con ingresso indipendente e giardino in bifamiliare
Informazioni di base
- Data aggiunta: Aggiunto 1 settimana fa
- Categoria: A2
- Stato: buono abitabile
- Camere da letto: 2
- Bagni: 1
- Mezzi bagni: 1
- Locali: 4
- Piani: 2
- Superficie: 135 m²
- Dimensione del lotto: 600 m²
- Anno di costruzione: 2005
Descrizione
-
Descrizione:
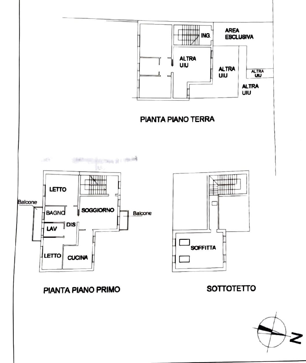
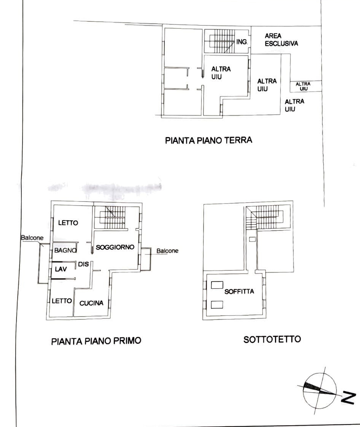
Situato a Moglia, MN, PRESTIGE PROPERTY CARPI propone in vendita ESCLUSIVA questo grazioso appartamento di 132 mq con ingresso indipendente posto al primo piano di una casa singola con 2 unita abitative divise per piano, che offre un ambiente accogliente, da subito abitabile e in ottimo stato di conservazione. Composto da ingresso indipendente che tramite la scala in marmo ci conduce all'ampio soggiorno, che attraverso 2 porte scorrevoli in vetro satinato si collega da un lato con la cucina spaziosa e abitabile e dall'altro ci conduce nella zona notte composta da due camere da letto ,bagno e lavanderia separata e due balconi. Al piano di sopra c'è una grande soffitta di 30 mq che si può utilizzare come stanza per gli ospiti, studio oppure zona hobby. Infissi in doppio vetro/legno e scuri in legno predisposti per essere motorizzati . Dotato di mpianto di allarme e telecamere per la sicurezza, questa soluzione indipendente è ideale per famiglie grazie alla vicinanza a scuole e asili. La zona è ben servita, con banche, farmacia e ufficio postale a pochi passi, oltre a ristoranti , negozi ,teatro, palestre, fermate di trasporti pubblici in vicinanza che arricchiscono l'offerta locale. Completa la proprietà un comodo box auto, garantendo praticità e comfort e un area esterna esclusiva . Per maggiori informazioni non esitate a contattarci . Visitate il nostro sito www.prestigeimmobiliarecarpi.it per vedere anche altre soluzioni . Se oltre all'acquisto avete bisogno di vendere la vostra casa attuale vi offriamo la valutazione GRATUITA del vostro immobile e tutti i consigli utili per ottenere il risultato desiderato ,in più uno sconto a voi dedicato sulla mediazione. Venite a trovarci anche in ufficio in Via F.D Roosevelt 25 a Carpi saremo lieti di aiutarvi a trovare la casa giusta per voi.
Mostra tutta la descrizione
Dettagli dell'edificio
- Caratteristiche di raffreddamento: climatizzatore
- Funzioni di riscaldamento: a radiatori
- Parcheggio: box, posto auto scoperto
Energy diagnostics
-
Energy Efficiency Class: ABCDEFG
Chiedi a un agente di questa casa
Nearby Schools
- Scuola elementare: si
- Scuola media: si
- Scuola materna: si
